Антонио Дженуарди

                       строительство от 1978 года

IT  GB  RUS

homeо наснекоторые здания, построенные намиконтактыЗакладки

Строительные работы в действии

* Алессандрия      Резиденция"Мария"

* Трино (Верчелли)     Резиденции "Летиция"

Земли и здания

* Валенца                      жилой дом

* Валенца                          Земля под застройку

* Биелла                     Андорно Микка          жилой дом

 

Links

A.C.E.

 

 

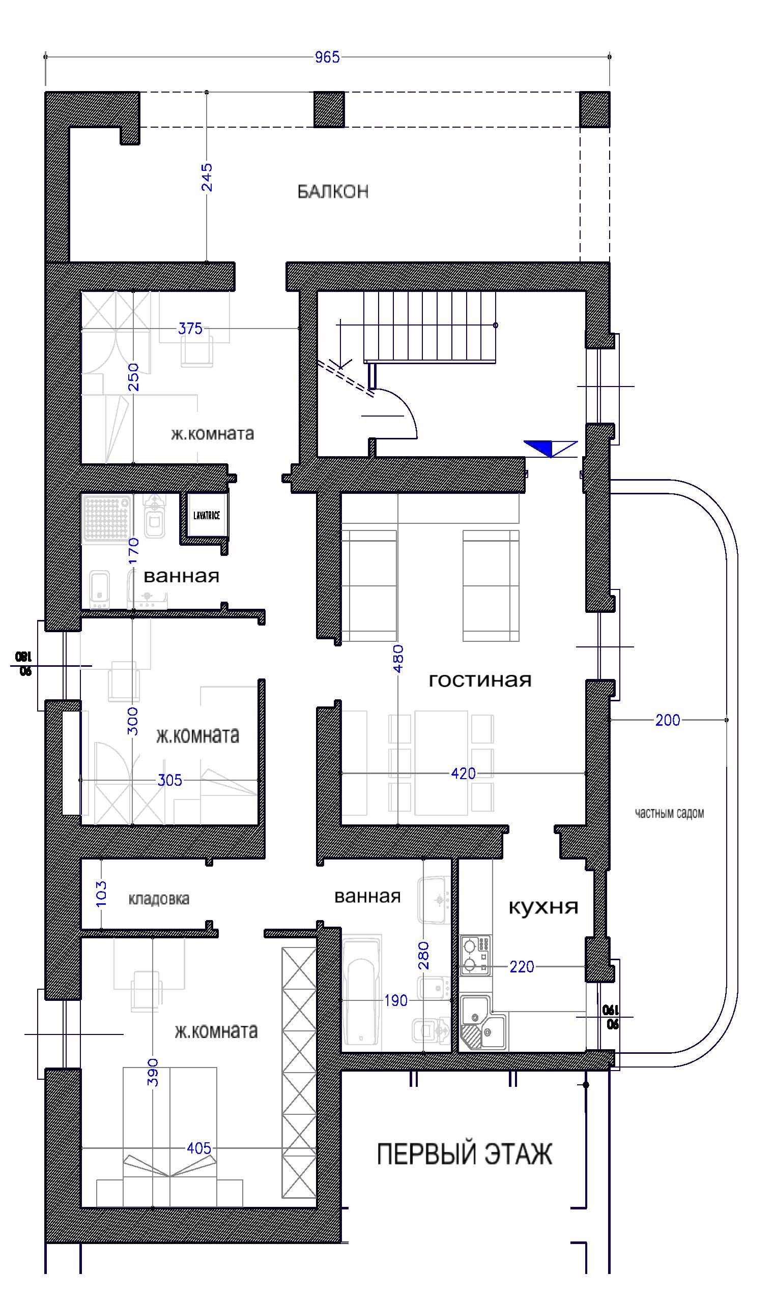
Резиденции "Летиция" - ул.Пьявэ -ул.Феррарис г.Трино (Верч.)

квартира - A1

нажмите на схему внизу,чтобы открыть или распечатать в PDF

Документация